BRAGIN Estate is a Real Estate company that care about all client requirements. We will achieve everything You need on the Spanish Real Estate market.

Property image
Property image
thumb 1
thumb 2

About This Property

€260,000 / sale

icon
Estacion De Autobuses, Torrevieja, Alicante, Spain

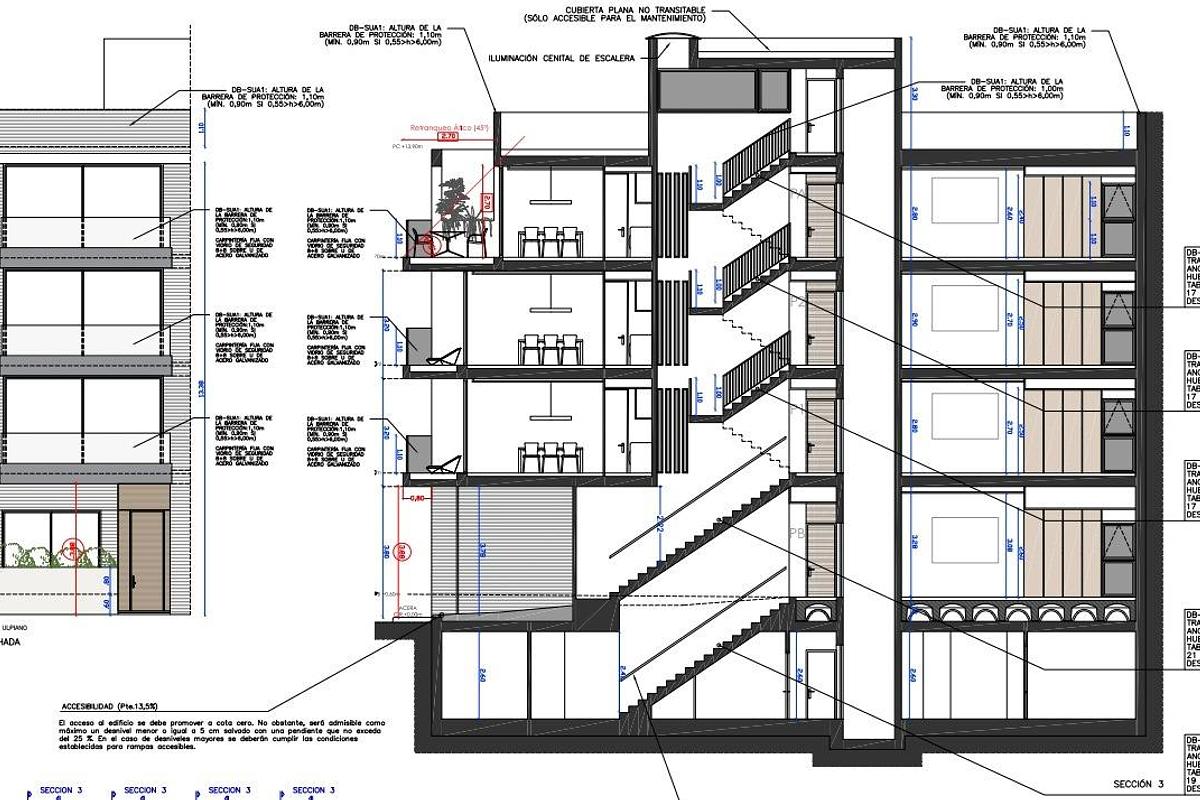
For sale: plot of land in the heart of Torrevieja, just steps from the beach (second line), with an approved architectural project for a 3-storey residential building. The project includes 4 two-bedroom apartments — one on each floor. Excellent investment opportunity for residential or tourist rentals. Prime location close to the sea, shops, restaurants, and all city amenities.

Property Highlights

House for sale
  • img

    Ref

    #BR-R3HI2N

  • img

    Type

    Land

  • img

    Bedrooms

    0

  • img

    Bathrooms

    0

  • img

    Plot size

    153 m²

  • img

    Purpose

    For Sale

  • img

    Built area

    0 m²

  • img

    Parking

  • img

    Elevator

  • img

    Wi-Fi

  • img

    Built in

Features & amenities

  • Beach: 150 Meters

Location

img

Address:

Estacion De Autobuses, Torrevieja, Alicante, Spain

Post Code: